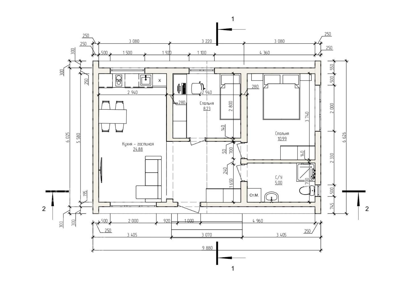
Дом, 65 м²
Загородные дома для семейного отдыха
В продаже дом Барнхаус изготовлен по каркасно - панельной технологии.
Барнхаус это - минимум внутренних перегородок, много света и пространства, большие двери, высокие потолки, панорамные окна.
Свайно винтовой фундамент, толщина наружных стен 240 мм.
Материал кровли - Металлические листовые гофрированные профили.
Внутренняя отделка (пол, стены, потолок), включая санузлы.

Каркасно-панельная технология - Это тип возведения дома на основе каркаса из сращенного бруса. Каркас внутри заполнен современным энергоэффективным утеплителем. Со стороны помещения каркас закрывается пароизоляционной пленкой и двухслойной внутренней обшивкой — ГСП и ГКЛ. Основными плюсами строительства каркасно-панельного дома являются энергоэффективность и энергосбережение, скорость возведения и низкая стоимость затрат по сравнению с такими же домами, возведенными из других материалов. Все детали дома изготавливают и подгоняют в условиях производства.

Способы расчета:
ипотека семейная, сельская, рассрочка на 3 года.
Сроки строительства 2 месяца.

Проект строим безопасно с использованием эскроу счета.
Ссылка на объявление: https://an-nominal.ru/sale/salehouse/47665
3 314 000
НоминалНедвижимость


Новосибирская область, Новосибирский район, квартал Зелёный (с Новолуговое)
redeemДанный объект можно приобрести в ипотеку

Информация об объекте

Вид объектаДом Тип продажиСвободная продажа Площадь участка5 Площадь дома65 Материал стенДеревянный Год постройки2025 Количество этажей1 Количество спален2 СанузелВ доме ОтоплениеЭлектрическое ГазЕсть ВодоснабжениеЕсть КанализацияЕсть ЭлектричествоЕсть