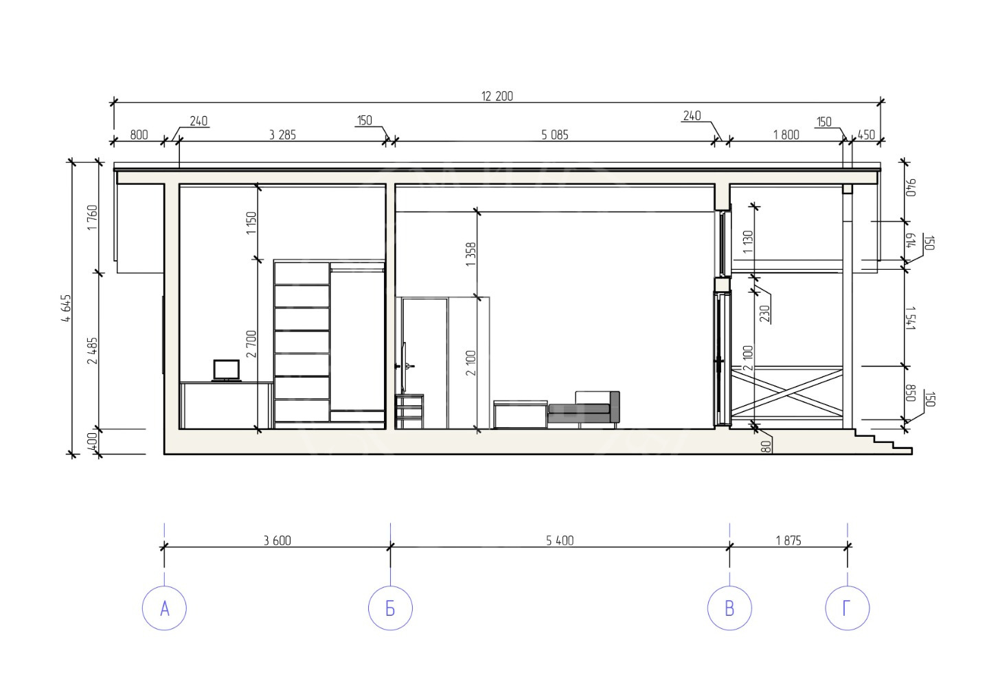
Дом, 107 м²
Загородные дома для семейного отдыха
Каркасный дом под индивидуальное строительство. Готовый проект Т-1
Дом с ремонтом под ключ 107 м.кв.
фундамент УШП, Обшивка крыши профилированным листом МП20, Обшивка фасада винил-сайдинг, Обшивка фасада планкен,входная дверь с терморазрывом.
Каркасно-щитовая панель 2,25 м*2,7 м «НОРД», утепленная минватой «КНАУФ» с толщиной 20см, Гидроветрозащита Изоспан AQ Proff, пароизоляция Изоспан с отражающим слоем. Рейки воздушной прослойки с внутренней и наружней стороны.
Срок строительства от 3х до 6 месяцев. Семейная ипотека, сельская ипотека.
Возможно уменьшить площадь и стоимость подряда.

Обратите внимание, стоимость дома без участка ( строим на Вашей земле)
Гарантия 5 лет.
Подрядчик Т-ПРЕФАБ.

Без комиссии агентству, проект договора бесплатно.

Ссылка на объявление: https://an-nominal.ru/sale/salehouse/47992
9 000 000
НоминалНедвижимость


Новосибирская область, Новосибирск, Кировский район, улица Прокопьевская
redeemДанный объект можно приобрести в ипотеку

Информация об объекте

Вид объектаДом Тип продажиСвободная продажа Площадь участка6 Площадь дома107 Материал стенДеревянный Количество этажей1 Количество спален1 СанузелВ доме ОтоплениеЭлектрическое ВодоснабжениеЕсть КанализацияЕсть ЭлектричествоЕсть